※ピンチアウトで画面を拡大してご確認ください。


利便性の高い伏見桃山エリア。12帖のビッグワンルーム
京阪、近鉄・2沿線利用可能な伏見桃山駅。大手筋商店街の中にあり、飲食店やスーパー・銀行等一通り揃っております。※ピンチアウトで画面を拡大してご確認ください。

お電話の場合は075-343-3008
(平日9:00~18:00 お問合せは京都の担当部署が受付)

POINT
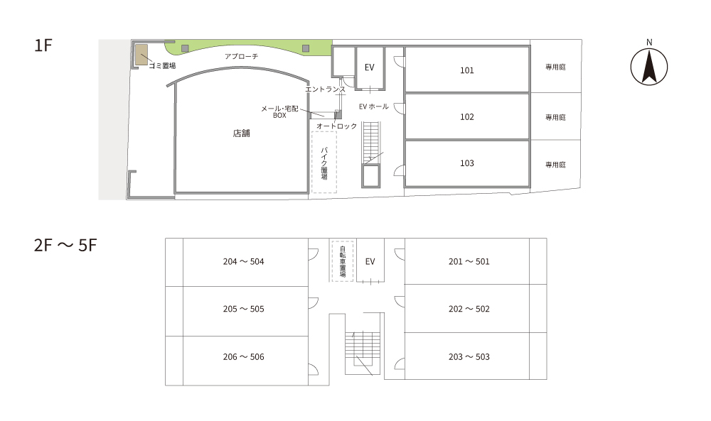
原付~大型バイク駐輪場
駅利用も便利な立地ですが、大学生の通学に便利な原付~大型バイクも月額1000円で駐輪できます。(空き状況はお問合せ下さい)
POINT
マンションは大手筋商店街の中
大手筋商店街は飲食店や銀行・コンビニ・ドラッグストアなど多くの店舗が並び、雨も気にせず買い物や外食に出かけられます。


マンション
駅
バス停
銀行・信用金庫・ATM
郵便局・交番・公共施設
学校・幼稚園・保育園
病院
コンビニ・スーパー・ドラッグストア
飲食店