第11長栄シャトー泉 | 長栄のデザイナーズリノベーション賃貸サイトpopolato(ポポラート)

choei room popolato ポポラート 人が笑顔で集まる場所

ポポちゃん

  1. TOP
  2. おすすめ物件
  3. 第11長栄シャトー泉

第11長栄シャトー泉
CHATEAU IZUMI

駅からも大学からも近い好立地♪人気のシンプル1Room

同志社大学へ歩いて「3分」とその近さもさることながら、地下鉄・今出川駅までも徒歩「4分」と駅近物件。
お部屋はコンパクトな6帖のワンルームですが、収納は充分。
駅近ながら周辺は住宅街で静かな環境。初めての一人暮らし・新生活におすすめしたい物件です。

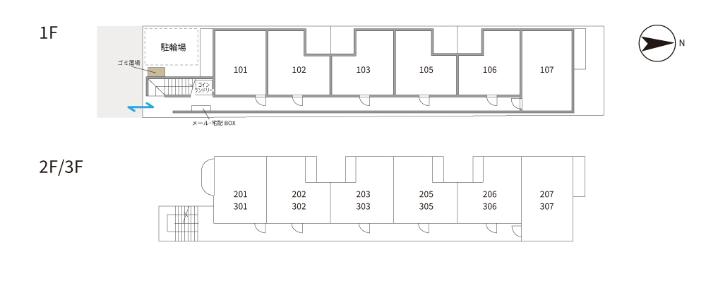
※ピンチアウトで画面を拡大してご確認ください。

お問合わせはこちら
LINEからお問合せ

お電話の場合は075-343-3008
(平日9:00~18:00 お問合せは京都の担当部署が受付)

【共用設備】コインランドリー/宅配ボックス/自転車駐輪場

コンパクトでシンプルなお部屋ですが、大きめのクローゼットとシューズクロークもあり、
窓は大きく一面と家具レイアウトがしやすい間取りになっているので、自分らしいインテリアが楽しめます。
【室内設備】ベランダ洗濯機置き場 / インターネット無料 / エアコン / ベランダ・バルコニーあり

お問合わせはこちら
LINEからお問合せ

お電話の場合は075-343-3008
(平日9:00~18:00 お問合せは京都の担当部署が受付)

  • マンション
  • バス停
  • 銀行・信用金庫・ATM
  • 郵便局・交番・公共施設
  • 学校・幼稚園・保育園
  • 病院
  • コンビニ・スーパー・ドラッグストア
  • 飲食店

京都府京都市上京区上立売通室町西入上立売町20番地
京都市営地下鉄烏丸線「今出川駅」周辺は、京都御所も徒歩圏内、同志社大学のキャンパス・多数の寺院がある緑豊かなエリアです。
今出川駅からは乗り換えなしで繁華街の四条へ5分、大阪・滋賀方面へのアクセスに便利な京都駅へは9分と
学生・社会人どちらも利便性の高い駅です。
大学に近いこともあり飲食店やコンビニ・スーパー・ジムなど便利な施設が整っています。

お問合わせはこちら
LINEからお問合せ

お電話の場合は075-343-3008
(平日9:00~18:00 お問合せは京都の担当部署が受付)

PAGE TOP